طراحی
- صفحه اصلی
- طراحی
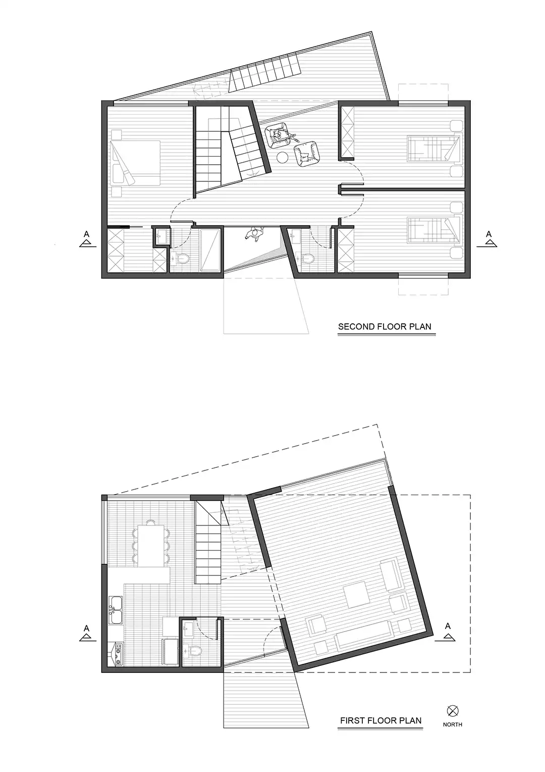
طراحی پلان
طراحی پلان شامل تحلیل و تنظیم چیدمان فضایی بر اساس عملکرد، جریان حرکتی و نیازهای کاربری است. در این مرحله، روابط فضایی میان کاربریهای مختلف، ابعاد فضاها، دسترسیها، نورگیری و تهویه طبیعی بررسی و بهینهسازی میشوند. طراحی پلان با رعایت استانداردهای معماری، مقررات ملی ساختمان و ضوابط شهرسازی انجام میشود تا ضمن حفظ کارایی، امکان اجرای آسان سازه و تأسیسات فراهم گردد. همچنین، توجه به انعطافپذیری فضا و امکان تغییرات آتی، از عوامل کلیدی در طراحی پلان است.


طراحی داخلی
فرآیند طراحی داخلی شامل تحلیل عملکردی و فضایی محیطهای داخلی، تعیین جریان حرکتی، جانمایی مبلمان و تجهیزات بر اساس اصول ارگونومی و نیازهای کاربری است. انتخاب متریال، پوششهای دیوار، کف و سقف، نورپردازی طبیعی و مصنوعی، و ترکیب رنگها در راستای ایجاد تعادل بصری و بهبود کیفیت محیطی انجام میشود. طراحی داخلی همچنین توجه ویژهای به مباحث پایداری، تهویه و آسایش حرارتی دارد تا فضای نهایی علاوه بر زیبایی، از نظر عملکردی نیز بهینه باشد.
طراحی نما
در طراحی نمای ساختمان، علاوه بر توجه به ترکیببندی بصری و فرم معماری، پارامترهای اقلیمی نظیر تابش خورشید، جهت باد، و میزان بارش در انتخاب سیستمهای سایهبان، عایقبندی و تهویه طبیعی لحاظ میشوند. همچنین تحلیل بافت شهری و رعایت ضوابط طرح تفصیلی و مقررات ملی ساختمان در طراحی نما و فرم از اهمیت بالایی برخوردار است. انتخاب متریال با توجه به دوام، نگهداری و اثرات زیستمحیطی، به همراه طراحی جزئیات اجرایی، باعث افزایش کیفیت و ماندگاری نما میشود.




مدل سازی
لورم ایپسوم متن ساختگی با تولید سادگی نامفهوم از صنعت چاپ


اندازه گیری اتاق
لورم ایپسوم متن ساختگی با تولید سادگی نامفهوم از صنعت چاپ
برنامه ریزی
لورم ایپسوم متن ساختگی با تولید سادگی نامفهوم از صنعت چاپ
آنچه مردم می گویند
عسل صابری
مشتری شرکت
علی درویشی
مشتری شرکت










